トップページ > 木更津市清見台2丁目 フレスティア木更津・清見台 2号棟

フレスティア木更津・清見台 2号棟

木更津市清見台2丁目

◇高台・南向きの角地です! この日当たりは、この邸宅に住まうご家族のものです!!

◇南向きのリビング、ダイニングは明るく・風通しも良く、いつも家族の笑顔が満ちています!!

◇ダイニングとリビングが緩やかに分かれ家族の生活時間の違いも気になりませんね!

◇リビングダイニングは南と南東に窓を設け暖かな朝日につつまれながらの朝食は家族の笑い声が絶えませんね!

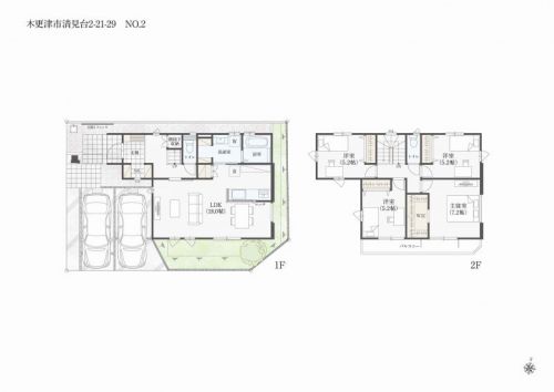
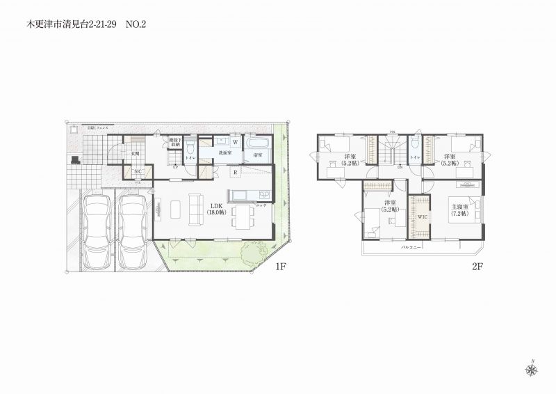
◇注文住宅仕様の下がり天井とアクセントクロスで高級感あるキッチンでお料理できます。キッチンパントリー付きでストック用品の収納も困りません。

◇主寝室はWIC付きで収納充実。バルコニーも付いていて、洗濯物を取り込んでそのままクローゼットへ時短家事もかないます!!

◇南に7mのロングバルコニーは家族全員の洗濯物干し、お布団も干すことが出来ますね♪

  • 資料請求
  • 見学予約
  • お気に入りリストを見る
  • 物件情報を印刷する
  • プリンタの設定で「背景を印刷する」と設定しないと「背景画像」が印刷されないことがあります。印刷の際には、必ず「背景を印刷する」設定にしてください。

この物件の支払例

販売価格 3,380万円
月々支払 79,772 頭金0円 / ボーナス払い50,000円
建物面積 105.16㎡(31.81坪)
土地面積 122.91㎡(37.18坪)

※上記支払例の借入条件:金利0.525%、借入総額3,380万円、借入期間35年

  • 4LDK

~こだわりのセレクト家具付きモデルハウス特別分譲♪~

◇木更津の高台・南の角地に最終1邸‼~生活利便性抜群な立地
◇リビングとダイニングが緩やかに分かれたLDK18帖の大空間です
◇暮らしの中で「ほしい」ところにある収納
  ~憧れのキッチンパントリー・SIC・WIC・洗面室収納~

この物件の詳細について、お気軽にお問い合わせください

  • 資料請求
  • 見学予約
  • お電話でのお問い合わせは

地図・交通

所在地 木更津市清見台2丁目21-29 フレスティア木更津・清見台 2号棟
最寄駅1 JR内房線 木更津 徒歩分数 27分
最寄駅2 JR久留里線 祇園 徒歩分数 20分
最寄バス停 徒歩分数
小学校校区 清見台小学校 中学校校区 太田中学校

※学校区は住所から自動判定したものであり、保証できる情報ではございません。正確な学校区はお問い合わせ下さい。

お問い合わせフォームはこちら

「人型アイコン」を地図上にドラッグすることで『Google Street View』に切り替わります。

※地図上の「対象地」は実際の場所ではない場合がございます。詳しくはお問い合わせください。

お問い合わせフォームはこちら

設備・仕様画像

  • 【免震構造】地震が多い日本で大きな地震が来た時にご家族、財産へのリスクを軽減します!
  • 【ZHE基準適合住宅】
    夏は涼しくすずしく×冬あたたかく×空気がきれい・
    ZEH基準の断熱性能×炭の家
    ~ぜひご体感ください~
    (断熱等性能等級5,一次エネルギー消費等級6相当)
  • 【炭の室内換気システム】調湿・防腐効果・花粉やアレルギー対策に!
  • 【住設あんしん保証】キッチン、バス、トイレなどの水まわり設備や電気機器はメーカー保証期間終了後も、10年までメーカー保証同様の修理サービスを受ける事ができます。(一部保証対象外)
  • 【省エネ性能ラベル取得】 ・エネルギー消費性能 ☆☆☆(削減率20%達成) ・断熱性能 5

周辺環境

  • 【木更津市立清見台小学校】約960m(徒歩12分)
  • 【木更津市立太田中学校】約1,000m(徒歩13分)
  • 【イオンタウン木更津朝日】約950m(徒歩12分)
  • 【セブンイレブン 清見台3丁目店】約150m(徒歩2分)
  • 【谷公園】約230m(徒歩3分)

物件動画

物件概要

種目 未入居一戸建住宅
間取り 4LDK 間取り内訳
土地面積 122.91㎡ 私道面積
建物面積 105.16㎡ スカイバルコニー面積
築年月(竣工月) 2024年06月 駐車場
建ぺい率/容積率 70%/200% 都市計画 市街化区域
接道状況 南6m 公道 接面11.3m  南東6m 公道 接面7.2m   一方道路
地目 宅地 建物構造規模 木造 2階建
土地権利 所有権 地勢 高台
用途地域 準住居地域
現況 取引態様 売主

取引条件等

引渡し 相談

その他

設備 温水洗浄便座、トイレ2ヶ所、追焚機能、浴室乾燥機、システムキッチン、カウンターキッチン、浄水器、食器洗浄乾燥機、ウォークインクローゼット、床下収納、洗髪洗面化粧台、電気、都市ガス、上水道、複層ガラス、モニタ付インターホン、駐車場2台分、玄関:ポケットKey 電動シャッター
特徴 日当り良好、免震構造
諸条件・相談
情報登録日 2024年3月16日 情報更新予定日 2025年10月25日
物件番号 896
建築確認番号 第23UDI1C建06922号
  • 資料請求
  • 見学予約
  • お気に入りリストを見る
  • 物件情報を印刷する
  • プリンタの設定で「背景を印刷する」と設定しないと「背景画像」が印刷されないことがあります。印刷の際には、必ず「背景を印刷する」設定にしてください。

資料請求・見学予約フォーム

※ご注意ください※
「資料請求」を行う場合、お住まいのご住所を必ずご入力の上、お進みください。
「見学予約」を行う場合、ご連絡のつくお電話番号を必ずご入力の上、お進みください。
確認ができない場合、「資料請求」「見学予約」がお受けできない場合がございます。あらかじめご了承ください。

ご依頼内容
お名前 (全角)
ふりがな せい めい (ひらがな)
住所
郵便番号 (半角数字) 郵便番号を調べる
都道府県 市区町村
町域以下
※建物名・部屋番号までご記入下さい。
見学希望日
見学希望時刻
電話番号 (半角数字)
メールアドレス
(半角英数字)
確認のため、もう一度メールアドレスをご記入下さい。
(半角英数字)
ご質問・ご検討内容等 (最大220文字まで)
個人情報の保護について
※当フォームのご利用にあたっては、「個人情報保護方針」にご同意いただく必要があります。ご同意いただける場合は、上記の「同意する」にチェックをつけたうえでご利用ください。

  • お近くのモデルハウスを探す!建売情報はこちら
  • まずはお家でゆっくり知りたい!カタログ・資料請求