外観パース
この物件の詳細について、お気軽にお問い合わせください
| 所在地 | 我孫子市白山1丁目2501番9 フレスティア我孫子・白山 | ||
|---|---|---|---|
| 最寄駅1 | JR常磐線 我孫子 | 徒歩分数 | 10分 |
| 最寄駅2 | 徒歩分数 | ||
| 最寄バス停 | 徒歩分数 | ||
| 小学校校区 | 我孫子第四小学校 | 中学校校区 |
白山中学校
|
※学校区は住所から自動判定したものであり、保証できる情報ではございません。正確な学校区はお問い合わせ下さい。
「人型アイコン」を地図上にドラッグすることで『Google Street View』に切り替わります。
※地図上の「対象地」は実際の場所ではない場合がございます。詳しくはお問い合わせください。
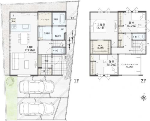
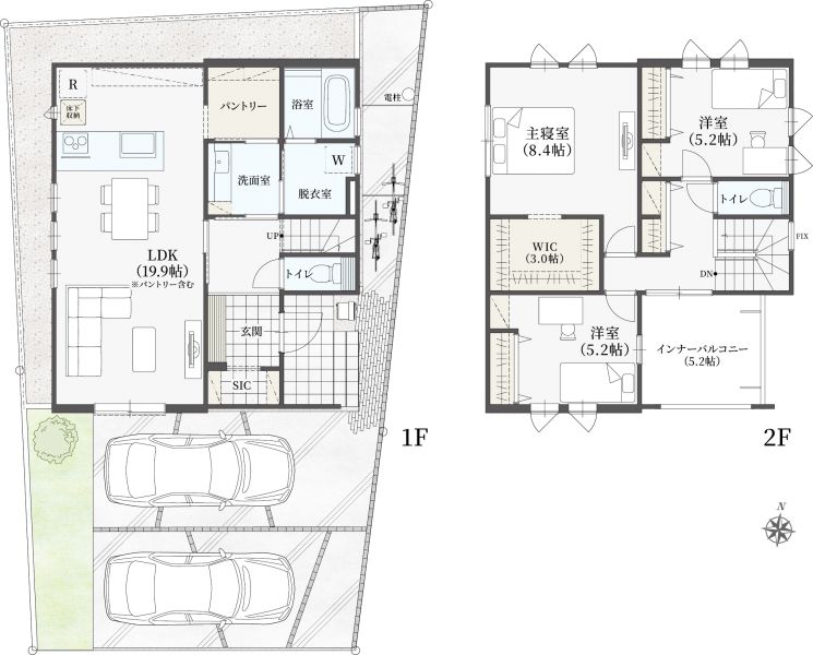
| 種目 | 新築一戸建住宅 | ||
|---|---|---|---|
| 間取り | 3LDK | 間取り内訳 | |
| 土地面積 | 137.3㎡ | 私道面積 | |
| 建物面積 | 112.4㎡ | スカイバルコニー面積 | |
| 築年月(竣工月) | 2026年03月 | 駐車場 | 2台駐車スペースあり |
| 建ぺい率/容積率 | 60%/150% | 都市計画 | 市街化区域 |
| 接道状況 | 北4.0m 公道 接面10.18m 東4.0m 公道 接面15.59m 角地 | ||
| 地目 | 宅地 | 建物構造規模 | 木造 2階建 |
| 土地権利 | 所有権 | 地勢 | 平坦 |
| 用途地域 | 第一種低層住居専用地域 | ||
| 現況 | 未完成 | 取引態様 | 売主 |
| 引渡し | 期日指定 2026年2月 |
|---|
| 設備 | 温水洗浄便座、トイレ2ヶ所、追焚機能、浴室乾燥機、システムキッチン、ウォークインクローゼット、洗髪洗面化粧台、電気、都市ガス、上水道、下水道、モニタ付インターホン、駐車場2台分 | ||
|---|---|---|---|
| 特徴 | |||
| 諸条件・相談 | |||
| 情報登録日 | 2025年10月31日 | 情報更新予定日 | 2025年11月21日 |
| 物件番号 | 1300 | ||
| 建築確認番号 | 第25UDI1C建13489号 | ||
| お問合わせ先 | (株)フレスコ 柏営業所 04-7190-1401 |
||
| 売主・事業主 | (株)フレスコ | ||